产品工艺

乐鱼(中国)

你所在的位置:首页 > 产品工艺 > 乐鱼(中国)

DLXF-型一体化连续流油泥水分离装置

新信息来源:发布时间:2014/8/23 16:03:47

  产品简介

  海吉雅自主研发产品一体化连续流油泥水分离装置,根据气浮和混凝动力学原理设计,实现了连续过滤和过滤介质连续再生,无需建反冲洗用水和反冲洗水回收水装置,简化了污水处理流程。

  适用范围

  一体化连续流油泥水分离装置抗冲击性好,适用于处理污水池污水 ,尤其适合小断块油田产出水就地处理。

  型号说明

 

  技术参数

 

  机泵选型

 

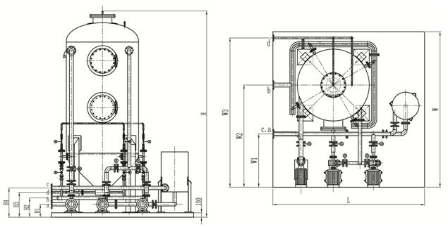
  安装尺寸

 

Copyright © 2017 乐鱼网页版登录入口 All Rights Reserved. 备案号:鲁ICP备18056355号-1 技术支持:滕州信息港